GEZİ PARKI KARŞISI SIFIR BİNADA KİRALIK DÜKKAN

GEZİ PARKI KARŞISI SIFIR BİNADA KİRALIK DÜKKAN

İlan No #849
Semt Gümüşsuyu
Fiyat (TL) ₺ 720.000
Aidat ₺ 1
Oda Sayısı 1+1
Banyo Sayısı 1
m2 brüt/net 210/200
Isıtma Merkezi
Eşyalı Hayır
Katı
Durumu Boş

Ahmet BİRCAN

Broker / Emlak Danışmanı
  • Açıklama

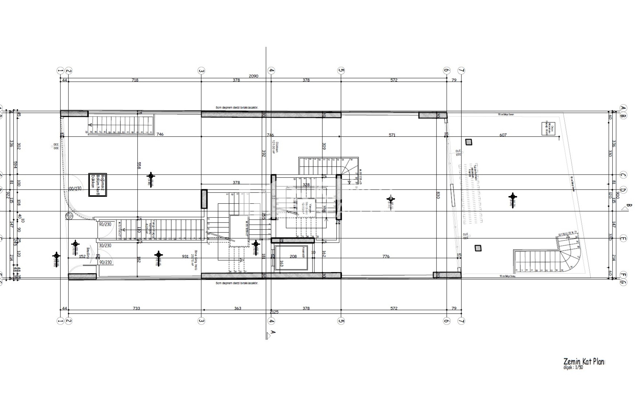
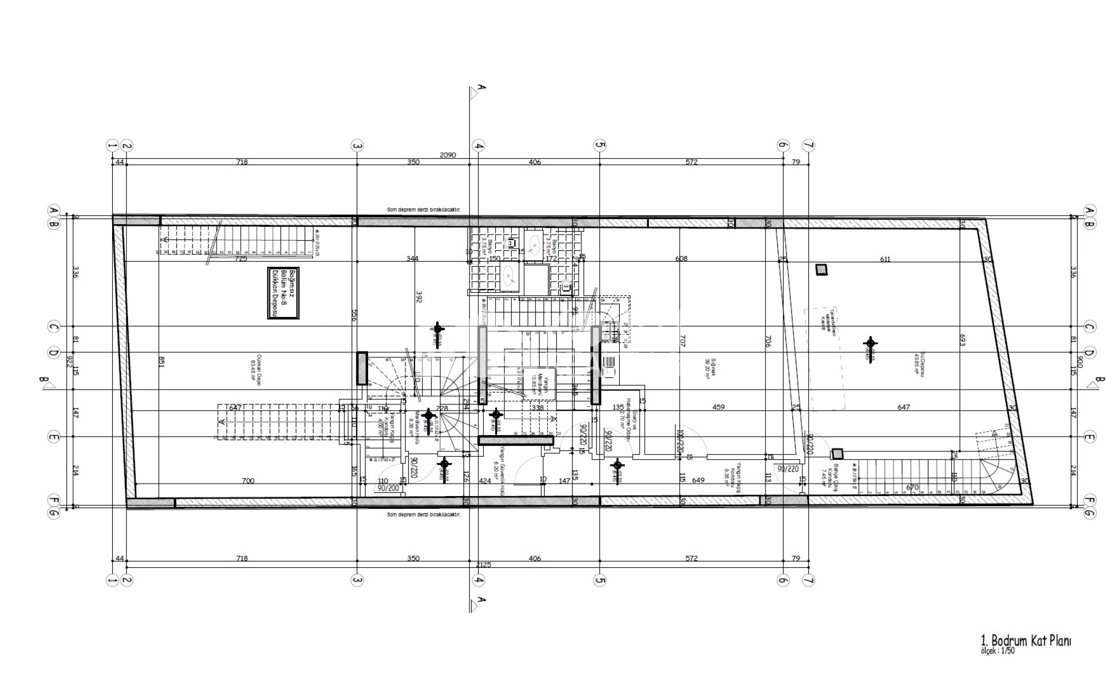
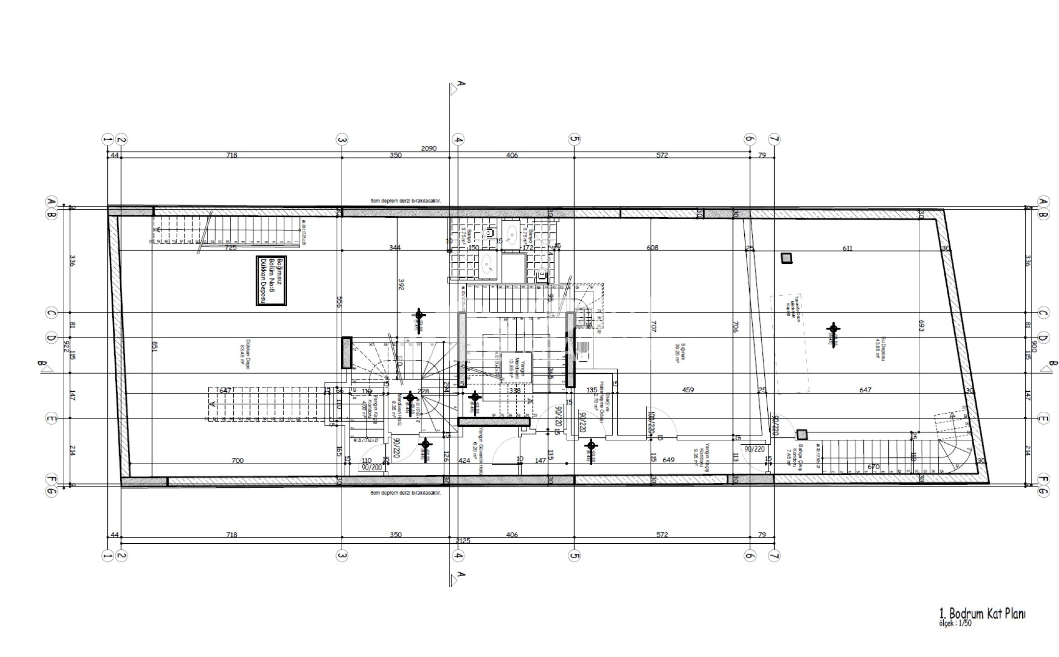
    Beyoğlu, Gümüşsuyu Mahallesi, Mete Caddesi üzerinde, Gezi Parkı karşısında, sıfır binada, zemin ve bodrum kattan oluşan, net 210 m² kapalı alanı olan, banka, restoran/cafe, pastane, vb. kurumsal firmalara uygun, kiralık depolu dükkan.

    Giriş tavan yüksekliği: 3.54 cm

    Kot1 tavan yüksekliği: 3.18 cm


    Kira: 600.000 TL + Kdv

  • Özellikler

    • Tramvaya Yakın
    • Otobüs Durağına Yakın
    • Deniz Ulaşımına Yakın
    • Metroya Yakın
    • Asansör
  • Konum